施工事例
完全分離型 Gさま/那覇市
ひとつの家で、それぞれの日常が満たされるおうち
| 建物種別 | 一戸建て |
|---|---|
| 間取り | 1F:1LDK・2F:1LDK+洗面脱衣室 |
| 面積 | 66㎡ |
| 築年数 | 41年 |
| 構造 | 鉄筋コンクリート造2階建て |
| 工期 | 6カ月 |
| 施工場所 | 那覇市 |
| 家族構成 | 1F:親世帯・2F:子世帯 |
| リフォーム内容 | 解体工事、木工事、内装工事、電気工事、設備工事、内装工事、タイル工事、外装塗装工事、外構工事、etc.. |
| カテゴリ | 完全分離型 |
お子さまたちが巣立ち、2階が空き部屋となっていたご実家を、子世帯が二世帯住宅として活用したいとのことでご依頼をいただきました。
1階は、行事などでご家族やご親戚が集まる機会はあるものの、普段はお母さまお一人で暮らされているとのこと。
そのため、現在のライフスタイルに合わせた空間の再プランニングや、将来を見据えたバリアフリーの住まいをご希望されていました。
一方2階は、サウナがご趣味のオーナーさまが、ご自身の時間も快適に過ごせるようにとのご要望をいただき、フルスケルトンにして1からプランニング。
間取りから内装まで大きく見直し、ホテルライクな暮らしを目指した空間をご提案しました。
親子世帯それぞれの想いをかたちにするため、今回は外まわりのアプローチから整える、1〜2階まるごとの二世帯リノベーション工事がスタートしました。
1階は、行事などでご家族やご親戚が集まる機会はあるものの、普段はお母さまお一人で暮らされているとのこと。
そのため、現在のライフスタイルに合わせた空間の再プランニングや、将来を見据えたバリアフリーの住まいをご希望されていました。
一方2階は、サウナがご趣味のオーナーさまが、ご自身の時間も快適に過ごせるようにとのご要望をいただき、フルスケルトンにして1からプランニング。
間取りから内装まで大きく見直し、ホテルライクな暮らしを目指した空間をご提案しました。
親子世帯それぞれの想いをかたちにするため、今回は外まわりのアプローチから整える、1〜2階まるごとの二世帯リノベーション工事がスタートしました。
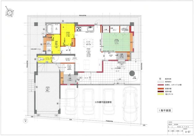
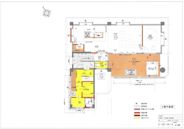
ルームプラン
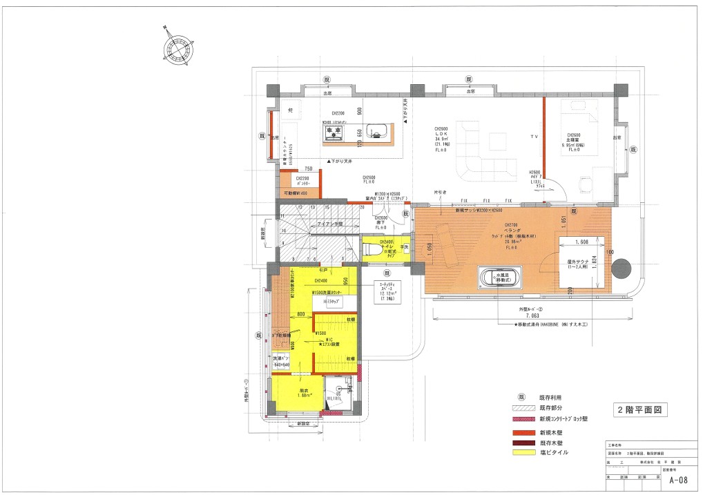
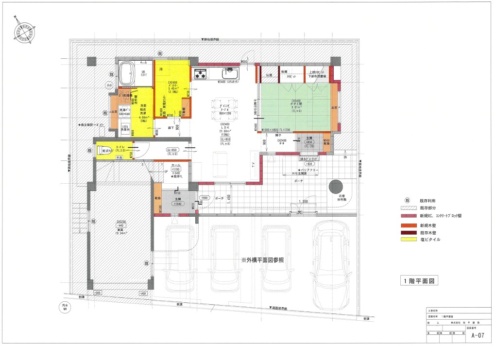
1階
2階
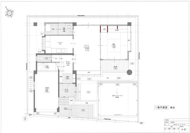
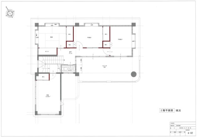
リノベーション前の写真
家づくりストーリー
今回は、ご実家を親子で暮らす二世帯住宅として活用するため、1階・2階それぞれに合わせたリノベーションを行いました。
1階の親世帯が暮らす空間は、これからの暮らしやすさを考えて段差をできるだけなくすなど、バリアフリーを意識した設計に。
玄関まわりのアプローチから室内まで、移動がスムーズにできるよう配慮しながらもこれまで通り家族や親戚が集まりやすい空間も残しています
。
ドアは構造上制限があった部分を除き、引き戸に統一。
内装では、以前に印象的だったアール型の出入口を、今回は△三角デザインへとアレンジ。
お好みに合わせて壁のアクセントカラーも取り入れて、親世帯の暮らしに寄り添いながら、使いやすさと安心感を兼ね備えた仕上がりとなりました。
2階は、これまで廊下に沿って個室が並ぶ間取りでしたが、今回のリフォームでは壁を取り払い、広々とした1LDKの空間へと大きく間取り変更を行いました。
内装は黒やブラウンを基調にした落ち着いたトーンでご提案。
壁や天井の仕上げにはポーターズペイント塗装を採用いただき、ご要望に合わせたホテルライクな空間へと生まれ変わりました。
さらに、外のバルコニーにはウッドデッキを敷いてサウナも設置。
「ワンちゃんとの暮らしや、趣味の時間をもっと楽しめそう」と、完成をとても喜んでいただけました。
今回は外まわりにも手を加えて、外壁塗装・駐車場の整備・玄関アプローチの新設なども実施しています。
親世帯・子世帯それぞれの暮らしに配慮しながら、プライベートをしっかり分けた“完全分離型の二世帯住宅”が完成しました。